“AUSTRALIA’S MOST SUSTAINABLE APARTMENT BUILDING” - The Local Project
20% Affordable Housing.
100% Fossil Fuel Free.
9.1 STAR Nathers.
Carbon Neutral.
“One of Melbourne's most revolutionary apartments. The intrigue behind the Austin Maynard Architects-designed and developed building goes beyond its beautiful design. ParkLife is one of Australia’s most sustainable apartment buildings, complete with shared vegetable gardens and an open-air rooftop that helps bring the community together.” - The Design Files




NatHERS 별 9.1개의 엄청난 에너지 등급을 보유한 ParkLife 는 Austin Maynard Architects가 여러 상을 수상한 지속 가능한 커뮤니티 Terrace House를 발전시키고 후속 작품으로, 전작에서 힘들게 얻은 교훈을 통해 모두 전기로 사용하고 화석 연료를 사용하지 않으며 지속 가능성이 뛰어난 ParkLife 아파트를 지었다.
Brunswick에 위치하고 호주 최초의 탄소 중립 주거 구역인 Nightingale Village 내에 위치한 ParkLife 는 37개의 주택과 2개의 상업용 임대 건물을 포함하는 지역 사회 중심의 아파트 건물이다.
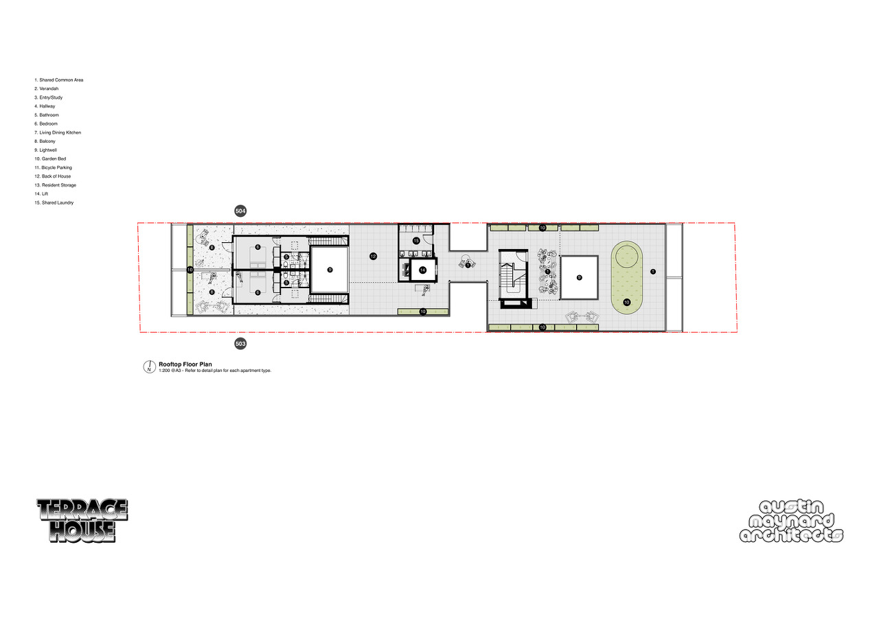
마을의 사회적 허브로 여겨지는 ParkLife는 독특한 박공지붕과 독특한 옥상 원형 극장은 물론 규모, 위치 및 성격이 다양한 다양한 사회/공동 공간을 보유하고 있다.
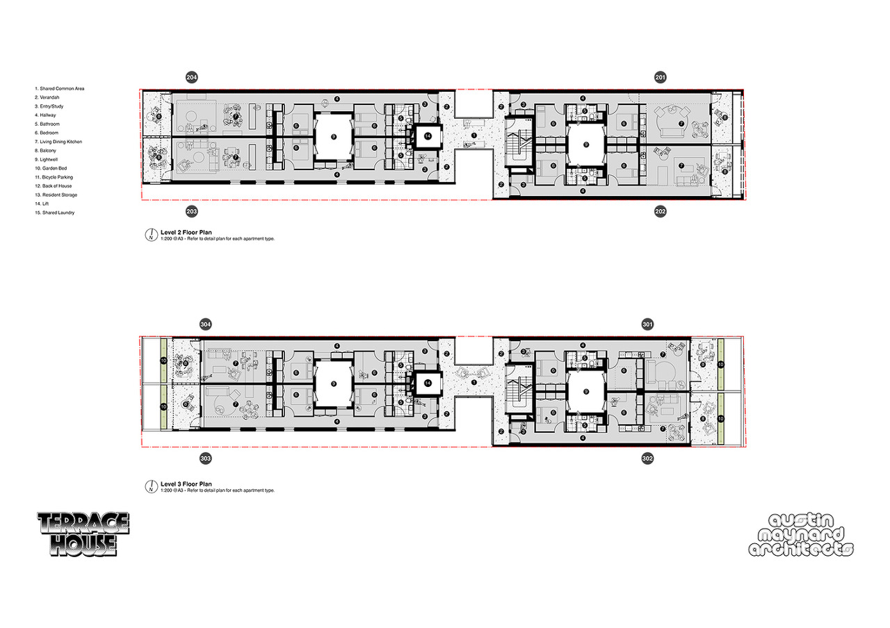
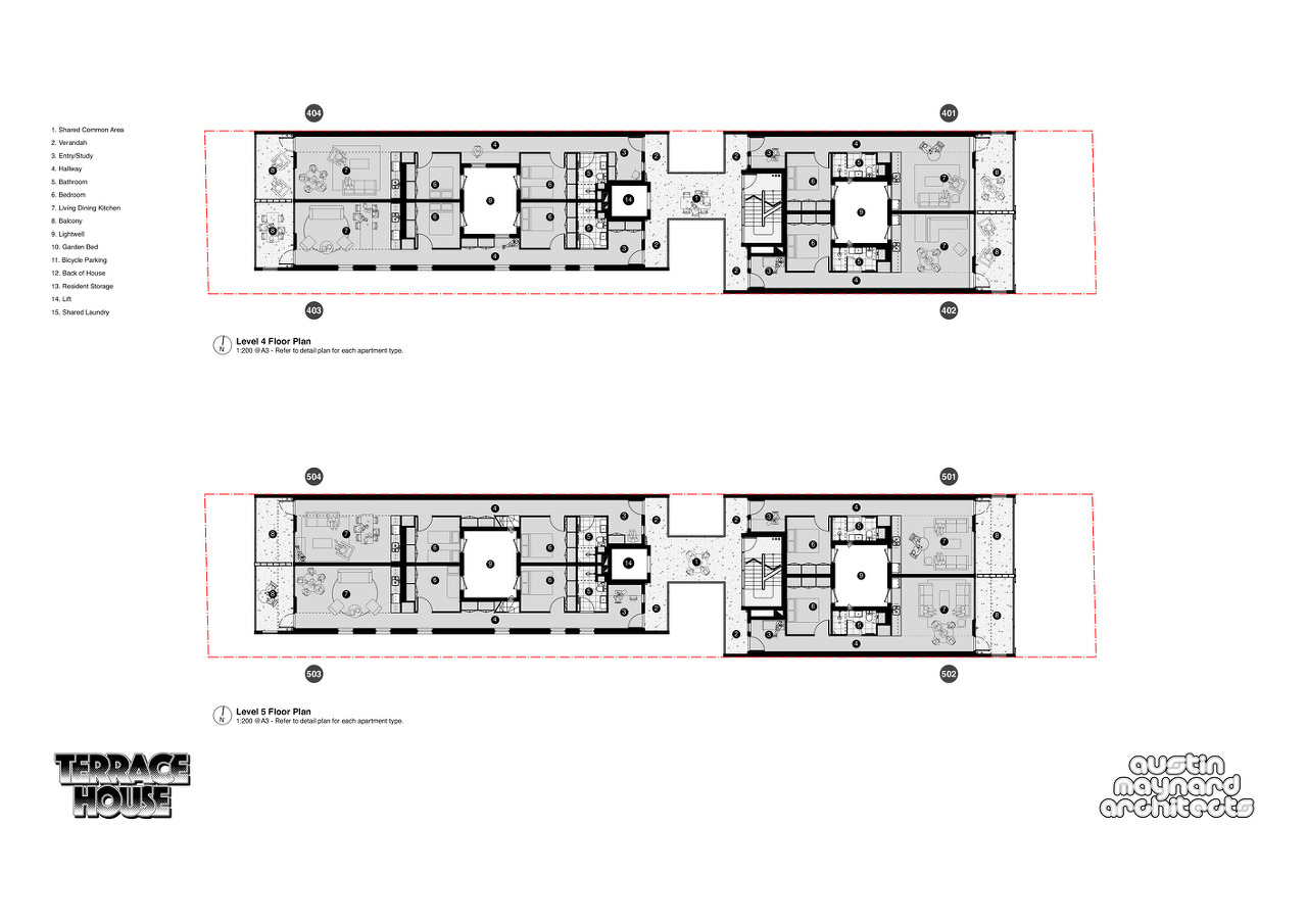
주택은 1베드룸 14개, 2베드룸 19개, 3베드룸 2개 및 Teilhaus 아파트 2개로 구성되어 있으며 각 아파트는 공간 효율성, 기능성 및 유연성을 높이도록 설계되었다. 아파트 중 5채는 Housing Choices Australia를 통해 사회주택으로 지정되었다.
지속 가능성에 대한 업계 표준 내에서 탁월한 ParkLife는 평균등급 9.1점을 받아 The Village에서 가장 지속 가능한 건물입니다.
유리 면적과 방향은 에너지 등급에 직접적인 영향을 미치는데, 가장 열 효율이 높은 집을 만들기 위해 우리는 유리의 크기와 간격을 달리했다. 발코니로 나가는 미닫이문의 머리 부분을 2.1m로 낮추고, 내부 벽면을 활용하기 위해 선반을 설치했다. 주민들이 책과 화분, 식물을 배치하여 효율적으로 사용하도록 했다.

지속 가능성
설계 과정에서 내려진 모든 결정은 건물의 지속 가능성을 높이는 데 기반을 두었다. ParkLife는 마을 및 지역 내 다른 건물과 매우 다르게 지어졌다. 다른 아파트 건물은 콘크리트 함량이 높아 비용 효과적이고 탄력적이지만 탄소 배출량이 높고 열교 측면에서 문제가 있다.Parklife는 사전 제작된 콘크리트 패널 대신에 단열 패널 클래딩을 사용했으며 각 측면을 컬러본드하고 단열 코어를 사용했다. 외벽의 열 성능이 향상되어 에너지 등급이 매우 높아지도록 했다. 내부 온도가 유지되고 시원하거나 따뜻한 공기가 새는 건물을 통해 손실되지 않도록 모든 접합부, 특히 문과 창문 주변을 잘 밀봉하는 데 주의를 기울였다.
잘 밀봉된 건물에서는 습기가 쌓이는 것이 문제가 될 수 있는데, 과도한 습기를 방지하고 건물 밀봉과 함께 일정한 내부 온도를 유지하기 위해 ERV(에너지 회수 환기) 시스템이 각 아파트 내에 설치했다. 이 장치는 각 방에 덕트가 있는 욕실 천장 위에 위치하여 오래된 내부 공기를 흡입하고 외부의 신선한 공기와 교환하는 동시에 열과 습기를 전달하여 아파트 내부 온도를 일정하게 유지하도록 해준다.

'03 잡학 스크랩' 카테고리의 다른 글
| One Times Square 2025 (0) | 2024.04.11 |
|---|---|
| [firm] Olson Kundig (0) | 2024.04.11 |
| John Morden Center. Mae (0) | 2023.10.30 |
| Perelman Performing Arts Center. REX NY (0) | 2023.10.30 |
| [스크랩] U2 The Sphere (0) | 2023.10.24 |